Aanbouw in Epaignes
De huidige eigenaren van deze kleine woning heeft ons gevraagd om een aanbouw te realiseren in de stijl van het huis. Ook het implementeren van een badkamer op de begane grond behoort tot de opdracht. Het terrein ligt net buiten de bebouwbare zone van roger met als gevolg dat het ontwerp aan veel regels moet voldoen. De opdrachtgever wilde een volledige verdieping in de aanbouw hebben. Maar één van de regels in het bestemmingsplan voor die zone was dat we niet hoger mochten bouwen dan de bestaande bebouwing. Doordat het huis slechts 5,7m hoog is, is de bruikbare ruimte op de verdieping zeer beperkt gebleven.
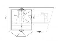
Om in de aanbouw te komen moeten we ook een doorgang maken in de kopgevel. Tevens plaatsen we een trap in het bestaande gedeelte om op de mezzanine te komen van de aanbouw.
Om de kosten in de hand te houden is alleen het gedeelte zichtbaar vanuit de tuin en het huis gebouwd in traditioneel vakwerk. De overige zijden zijn gebouwd als houtskeletbouw met een houten aftimmering.